Rysunek architektoniczny to podstawowe narzędzie komunikacji w branży budowlanej, wymagające precyzji i znajomości standardów technicznych. Proces tworzenia dokumentacji projektowej rozpoczyna się od opanowania fundamentalnych zasad kreślenia i konwencji rysunkowych.
Najważniejszym elementem jest zrozumienie skali rysunku oraz zasad rzutowania prostokątnego. W praktyce architektonicznej stosuje się różnorodne techniki przedstawiania obiektów – od szkiców odręcznych po zaawansowane wizualizacje komputerowe. Podstawowym narzędziem pozostaje jednak klasyczny rysunek techniczny, wykonywany zgodnie z normami budowlanymi. Precyzja kreślenia, odpowiednie grubości linii oraz prawidłowe oznaczenia materiałów budowlanych stanowią bazę poprawnej dokumentacji projektowej. Zastosowanie odpowiednich grubości linii – od cienkich linii wymiarowych po grube linie przekrojowe – pozwala hierarchizować informacje na rysunku.
Podstawowe elementy dokumentacji technicznej
Każdy projekt budowlany musi mać następujące elementy:
- Rzuty wszystkich kondygnacji w skali 1:50 lub 1:100
- Przekroje charakterystyczne przez budynek
- Elewacje oraz detale architektoniczne
Zasadnicze jest właściwe zwymiarowanie rysunków oraz oznaczenie wszystkich elementów konstrukcyjnych i wykończeniowych. Aksonometria i perspektywa to techniki pozwalające na przestrzenne zobrazowanie projektowanego obiektu – są nieocenione w prezentacji koncepcji klientowi. Prawidłowe stosowanie oznaczeń materiałowych (szrafy techniczne) umożliwia jednoznaczną interpretację dokumentacji. Architekt musi wykazać się znajomością zasad ergonomii i przepisów budowlanych, które determinują wymiary pomieszczeń, szerokości ciągów komunikacyjnych czy wysokości kondygnacji.

Specjalistyczne aspekty kreślenia technicznego
Nowoczesne projektowanie architektoniczne wykorzystuje zaawansowane oprogramowanie CAD (Computer Aided Design), jednak fundamentalne zasady pozostają niezmienne. „Dobry rysunek techniczny powinien być czytelny i jednoznaczny” – to podstawowa zasada kreślenia. W dokumentacji projektowej ważne są także prawidłowe opisanie rysunków: należy uwzględnić wszystkie potrzebne informacje, takie jak oznaczenia poziomów, spadków czy materiałów wykończeniowych. Jak osiągnąć perfekcję w kreśleniu detali architektonicznych? Konieczna jest znajomość zasad konstruowania połączeń budowlanych i węzłów konstrukcyjnych. Projektant musi uwzględnić wymagania technologiczne (dotyczące izolacji termicznej i przeciwwilgociowej) oraz estetyczne (proporcje i kompozycję bryły budynku).
Fundamenty na papierze – podstawa zrozumienia sztuki rysunku architektonicznego podstawy
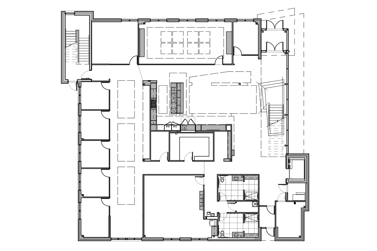
Rysunek podstawy w architekturze stanowi ważny element dokumentacji technicznej, przedstawiający poziomy przekrój budynku wykonany na określonej wysokości.
Jest to jeden z najważniejszych typów rysunków, ponieważ pokazuje rozkład pomieszczeń, grubość ścian oraz rozmieszczenie wszystkich elementów konstrukcyjnych i instalacyjnych. Podstawa musi być wykonana z najwyższą precyzją i zgodnie z obowiązującymi normami technicznymi, ponieważ stanowi bazę dla pozostałych rysunków projektowych.
Na rysunku podstawy architekt umieszcza szereg ważnych informacji, np. wymiary pomieszczeń, oznaczenia materiałowe, opisy funkcji poszczególnych przestrzeni oraz elementy wyposażenia stałego. Wszystkie te elementy są przedstawiane za pomocą znormalizowanych oznaczeń i symboli, które muszą być czytelne i jednoznaczne dla wszystkich uczestników procesu budowlanego. Podstawę wykonuje się zawsze w odpowiedniej skali, najczęściej 1:50 lub 1:100 dla większych obiektów, co pozwala na dokładne przedstawienie wszystkich detali. Rysunek musi mać także siatkę modularna, osie konstrukcyjne oraz oznaczenia kierunków geograficznych. Ważnym elementem jest także system wymiarowania, który powinien być pełen i spójny, pilnujący także wymiary zewnętrzne budynku i wewnętrzne pomiarów pomieszczeń. Na rysunku podstawy architekt zaznacza także wszystkie otwory drzwiowe i okienne, schody, oraz elementy konstrukcyjne takie jak słupy czy podciągi.
Cyfrowa rewolucja spotyka tradycję – CAD w służbie architektury
Projektowanie ręczne CAD w rysunku architektonicznym to fundamentalne narzędzie aktualnego projektanta, łączące precyzję technologii z artystycznym wyrazem. Systemy CAD zmieniły sposób, w jaki architekci tworzą i wizualizują swoje projekty, umożliwiając bardziej efektywną pracę nad szczegółowymi rozwiązaniami technicznymi. Dokładność wymiarowania, możliwość szybkiego wprowadzania zmian oraz tworzenia wielowarstwowych projektów sprawiły, że tradycyjne deski kreślarskie zostały zastąpione przez monitory komputerowe.
- Precyzyjne wymiarowanie elementów
- Biblioteki gotowych komponentów
- Możliwość pracy w wielu warstwach
- Łatwa edycja i modyfikacja projektów
- Automatyczne generowanie zestawień
- Współpraca z innymi programami branżowymi
- Eksport do różnych formatów plików
- Zaawansowane narzędzia prezentacji
Nowoczesne oprogramowanie CAD oferuje zaawansowane funkcje, takie jak modelowanie 3D, rendering czy analizę energetyczną budynków. Integracja z technologiami BIM (Building Information Modeling) pozwala na zarządzanie informacjami o projekcie.
Ergonomia w projektowaniu CAD – wpływ na efektywność pracy
Właściwe wykorzystanie narzędzi CAD wymaga dobrego przygotowania stanowiska pracy i znajomości ergonomicznych zasad. Długotrwała praca przy komputerze może prowadzić do przeciążeń układu mięśniowo-szkieletowego, dlatego ważne jest stosowanie ergonomicznych akcesoriów i częste przerwy. Implementacja gestów i skrótów klawiszowych mocno przyspiesza proces projektowania, redukując powtarzalne czynności do minimum. Nowoczesne interfejsy użytkownika są projektowane z myślą o maksymalnej intuicyjności i efektywności pracy.
Profesjonalne systemy CAD dają także zaawansowane możliwości współpracy zespołowej, pozwalając na równoczesną pracę wielu projektantów nad równocześnie projektem. Systemy kontroli wersji i automatycznego backupu dają nam bezpieczeństwo danych projektowych i możliwość śledzenia historii zmian.
Aksonometria – więcej niż rzut oka na bryłę
Aksonometria jest jedną z najbardziej intuicyjnych metod przedstawiania obiektów trójwymiarowych na płaszczyźnie, szczególnie cenioną w dokumentacji budowlanej. Technika ta pozwala na jednoczesne przedstawienie trzech wymiarów obiektu w sposób czytelny i zrozumiały również dla profesjonalistówi osób niezwiązanych z branżą. W przeciwieństwie do tradycyjnych rzutów prostokątnych, aksonometria umożliwia natychmiastowe zrozumienie kształtu i proporcji budynku. Wyróżniamy trzy podstawowe rodzaje aksonometrii: izometrię, dimetrię i trimetrię, które różnią się kątami nachylenia osi oraz współczynnikami skali. Izometria, jako najpopularniejszy wariant, wyróżnia się równymi kątami między osiami (120 stopni) i jednakowym skrótem perspektywicznym we wszystkich kierunkach. Ta metoda jest szczególnie przydatna przy przedstawianiu instalacji wewnętrznych budynku, detali konstrukcyjnych oraz złożonych węzłów architektonicznych.
Dimetria z kolei stosuje dwa różne współczynniki skróceń, co czasami lepiej oddaje rzeczywisty wygląd obiektu z punktu widzenia obserwatora. W praktyce projektowej aksonometria często służy do wizualizacji koncepcji architektonicznych na wczesnym etapie projektowania. Jest niezastąpiona w prezentowaniu skomplikowanych układów instalacyjnych, gdzie zrozumienie wzajemnego położenia elementów ma znaczenie. Aktualnie programy CAD mocno ułatwiają tworzenie rysunków aksonometrycznych, automatyzując proces i umożliwiając szybkie modyfikacje. Można napisać, że mimo rozwoju technologii 3D, klasyczna aksonometria nie traci na znaczeniu, pozostając ważnym narzędziem komunikacji w branży budowlanej. Stanowi ona doskonały kompromis między techniczną precyzją a czytelną prezentacją przestrzenną, pozwalając na efektywne przekazywanie informacji projektowych wszystkim uczestnikom procesu inwestycyjnego.


